Amenities: Gym, pool, hot tub, BBQ pavilions, putting green, dog park, Wi-Fi, Billiard room, business conference room, business work stations, lounge room, party room with caterer’s kitchen, theater, tennis courts.
Maint. Fee Range:
$1.03/sf
- $1.39/sf
Building Analysis - Koolani: ~ by Jonathan Ford Building and Site Features
Koolani has proven itself to be one of the finer higher rises in Honolulu with its high end finishes, floor to ceiling windows, luxurious lobby and generous amenities. Koolani was developed in 2005 by Crescent Heights, who was also responsible for Ala Moana Hotel's complete refurbishment and many luxury condos across the US,
The tower is located immediately adjacent to a public playground/dedicated park and is just a short 5-10 minute walk to the Ala Moana Shopping center, Ala Moana Beach Park, and Ward theaters. Koolani residents will also enjoy the benefits of being on the edge of Howard Hughes largest LEED-ND Platinum Certified neighborhood in the United States - without having to pay the fees for its upkeep in that planned community.
Koolani's lobby entrance is located off of Waimanu street with guest parking located both off the upper ramp turnabout that is adjacent to the lobby as well as longer term covered guest parking in the garage below.
Common Areas for Residents
Upon entry, Koolani residents and guests are greeted by luxurious and sleek lobby with double height ceilings and a concierge front desk backed by a graceful waterfall feature.
Koolani has wide ranging and top quality amenities. For the active minded there are tennis courts, pool, hot tub, putting green. Residents have access to a full service professional gym complete with fitness classes, sauna, steam room, locker room, massage rooms and more at a heavily discounted rate.
For entertaining there are several BBQ pavilions on the beautifully landscaped recreation deck as well as a separate recreation level with a billiards room, theater, large party room with caterer’s kitchen and a lounge room. There is also one guest suite residents may reserve based on availability.
To help meet business needs there is a full conference boardroom as well as a separate room with individual business workstations. There is also Wi-Fi in the common areas.
Of course, there is 24 hour security with camera surveillance and electronic fob secured entrance and elevators.
Private Condo Features
The developer did not spare many expenses when it comes to the finishings in each unit. Kitchens enjoy top of the line Viking appliances with gas burners, elegant frosted glass face cabinets with under cabinet lighting and ample pantry space. Bathrooms feature deep soaking tubs, marble vanities and elegant touches to the mirrors and wall sconces.
Typical flooring includes marble and limestone in the kitchen, baths and entry with carpet in the living room and bedroom, unless otherwise upgraded. Most master bedrooms will have a walk-in closet. All units enjoy central air conditioning and the windows are insulated with tinting to help keep the units cool and improve sound proofing.
Most units do not have a lanai, but do have windows that open double wide to allow for airflow and a solid connection to the outdoors, while the floor to ceiling glass windows allow for expansive views.
The Bottom Line Best features: Great amenities, great location, top of the line finishes. Truly a "Class A" building.
Potential drawbacks: While there are still great ocean views in most units, there will be obstructions from future developments.
Comments:
Most units above floor 35 have a lanai.
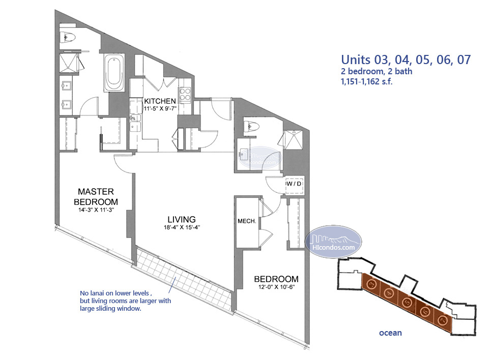
Found in units: 03,04,05,06,07
Bedrooms:
2
Baths:
2
Square Feet:
1,518 SF
Lanai:
above floor 31 only
Qty:
37
Comments:
Large Corner two bedroom unit. Some nice views, but behind other buildings. Plan "D"
Found in units: 08
Bedrooms:
3
Baths:
2
Square Feet:
1,364 SF
Lanai:
no
Qty:
37
Comments:
Corner unit with Ewa, ocean and mountain views. Unit "A"
Found in units: 01
Bedrooms:
3
Baths:
2
Square Feet:
1,392 SF
Lanai:
no
Qty:
38
Comments:
Corner Three Bedroom Plan "E" on cool side of building with mostly mountain views.
Found in units: 09
Bedrooms:
3
Baths:
2
Square Feet:
1,561 - 1,573 SF
Lanai:
yes above floor 33
Qty:
38
Comments:
Excellent Ocean Views. Corner unit known as Plan "B"
Found in units: 02
Bedrooms:
4 - Penthouse Suite
Baths:
4.5
Square Feet:
1,801 - 2,611 SF
Lanai:
476
Qty:
5
Comments:
There are 11 2-story penthouse units, of which 9 have access to a 3rd floor roof top lanai. There are 2,3 and 4 bedroom penthouse configurations.
The above active listings are based on information from the Multiple Listing Service of the Hicentral MLS, Ltd. Active listings last updated on 10/22/2025. Information is deemed reliable but not guaranteed. Copyright: 2025 by the Hicentral MLS, Ltd. more.
Upon entry, Koolani residents and guests are greeted by luxurious and sleek lobby with double height ceilings and a concierge front desk backed by a graceful waterfall feature.
Koolani has wide ranging and top quality amenities. For the active minded there are tennis courts, pool, hot tub, putting green. Residents have access to a full service professional gym complete with fitness classes, sauna, steam room, locker room, massage rooms and more at a heavily discounted rate.
For entertaining there are several BBQ pavilions on the beautifully landscaped recreation deck as well as a separate recreation level with a billiards room, theater, large party room with caterer’s kitchen and a lounge room. There is also one guest suite residents may reserve based on availability.
To help meet business needs there is a full conference boardroom as well as a separate room with individual business workstations. There is also Wi-Fi in the common areas.
Of course, there is 24 hour security with camera surveillance and electronic fob secured entrance and elevators.
Private Condo Features
The developer did not spare many expenses when it comes to the finishings in each unit. Kitchens enjoy top of the line Viking appliances with gas burners, elegant frosted glass face cabinets with under cabinet lighting and ample pantry space. Bathrooms feature deep soaking tubs, marble vanities and elegant touches to the mirrors and wall sconces.
Typical flooring includes marble and limestone in the kitchen, baths and entry with carpet in the living room and bedroom, unless otherwise upgraded. Most master bedrooms will have a walk-in closet. All units enjoy central air conditioning and the windows are insulated with tinting to help keep the units cool and improve sound proofing.
Most units do not have a lanai, but do have windows that open double wide to allow for airflow and a solid connection to the outdoors, while the floor to ceiling glass windows allow for expansive views.
The Bottom Line
Best features: Great amenities, great location, top of the line finishes. Truly a "Class A" building.
Potential drawbacks: While there are still great ocean views in most units, there will be obstructions from future developments.