|
|
 |
Unit# 3501/3502 in Hawaiki Tower
88 Piikoi - Ala Moana
MLS#: 202604916
|
$1,375,000
Fee Simple
Original List Price: $1,375,000
Days On Market: 0
|
| Bedrooms: |
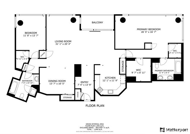
2
|
Living Area: |
1967 SF
|
Parking: |
3 stalls |
| Baths: |
2 Full
|
Lanai: |
75 SF
|
|
|
| Condition: |
Above Average
|
Total SF: |
2042 SF
|
View: |
City, Coastline, Mountain, Ocean, Sunset
|
Listing Agent Remarks:
new price! seller wants it sold! rarely available and highly sought after double unit featuring 2 large primary suites in the prestigious hawaiki tower. beautiful corner end unit with spectacular ocean & city views from every room with the floor to ceiling windows that let in lots of natural light. enjoy lots of space with this open floorplan totaling over 2000 sf. three parking stalls which all have storage cabinets above each stall. upgrades include new flooring throughout the living, dining, kitchen and bedrooms, interior is freshly painted, and new cabinet doors in the kitchen and bath. relish in luxury amenities including the heated pool, whirlpool, tennis court, putting green, play area, library & more or head to the sandy beaches at ala moana beach park across the street. roam the neighborhood full of shopping, restaurants, coffee shops, ala moana shopping center, ward center and world-famous waikiki just a mile away. pet-friendly building known for low maintenance fees. one or more photos have been enhanced. -
redfin corporation
|
| Property Taxes: |
$657 per month [Tax Info] |
| Maintenance Fees: |
$1916 per month |
| Maintenance Fee pays for: Cable TV, Hot Water, Sewer, Water |
| Maint. Fee/Interior SF: $0.97/sf |
Maint. Fee/Total SF: $0.94/sf |
Remodeled: Partial in 2024 Flooring: Laminate, Wall to Wall Carpet Unit Features: Bedroom on 1st Level, Central AC, Corner/End, Even# Unit, Full Bath on 1st Floor, Odd# Unit, Single Level, Storage
Disclosures: Pets Allowed (Verify), Property Disclosure Statement - Attribution Contact (808) 201-2821
Parking Features: 3 stall(s), Assigned Stall, Stalls Covered: - 3+, Garage, Guest Stalls Available, Secured Entry, Street Parking available
|

|
|


















































|
|


Our specialty is helping buyers find the right condo in Honolulu, Downtown to Diamond Head, and representing their best interests.
This is not our listing and we do not represent the sellers of this property.
|